1 目前泥水盾构的使用情况和问题分析
泥水盾构自1964年开始被用在不同项目上,在设备本身和施工工艺上不断改进,基本上形成了间接控制(欧洲模式)和直接控制(日本模式)两大类比较典型的泥水盾构。两种典型的泥水盾构区别主要如下:
(1)直接型泥水盾构没有气垫舱,而间接性泥水盾构设有泥水舱和气垫舱。
(2)开挖量相同的情况下间接性泥水盾构较直径控制性泥水管路和泥水量较大。
(3)间接性泥水盾构在地质探测不明或地质变化较大的地层适应性更强。
(4)间接性泥水盾构由于设有气垫舱压力控制较日本型泥水盾构好。
泥水盾构现在多被用在沉降比较高或地下水位高渗透系数大的场合,对于沉降要求比较高或要求接近零沉降的工程,目前的泥水盾构就不能很好地适应。另外,如需要适应更为多变的地质,需要对组成进行优化或改进。
2 高精度压力控制系统
2.1 直接性泥水平衡模式
直接性的泥水盾构没有气垫舱,称为直接控制模式或日本模式,见图1。泥水舱中泥浆压力通过调节送、排泥泵转速或调节送、排管路上的控制阀开度来进行,特别在泵的启动和停止使压力波动比较大,这种压力波动引起掌子面的不稳定,造成地表的沉降或隆起,对附件的建筑物或管线造成一定的损坏。当泥浆泵控制距离长而产生延迟效益时,很难准确控制泥浆压力,只能通过调节阀的开度来调节泥浆压力。
图1 直接性泥水平衡模式
实际上,泥水盾构工作成功的关键是能把开挖出碴土输到洞外,在进、排泥浆关路上分别安装流量计和密度仪,通过检测泥浆的流量和密度,计算出盾构的排土量,比较排土量与理论土量,并将实际排土量控制在一定范围内,从而减少或避免地面变形,保证隧道施工安全。
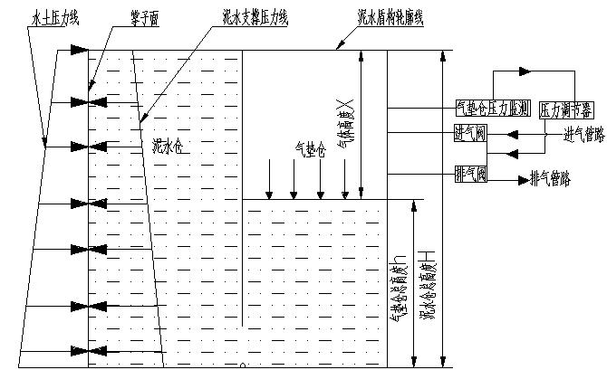
2.2 欧洲泥水平衡模式
欧洲模式的泥水盾构设有泥水舱和气垫舱,掌子面的压力大小靠气垫舱气压的大小和泥浆高度压力来调节,这种称为间接模式或欧洲模式,见图2。在这种模式下,一旦地质压力确定,则气体压力将被设定成一个固定压力值,不管液面高度如何变化,气体压力将一直保持在设定值左右,当液面降低时,则掌子面的压力降低;当液面升高,掌子面压力升高。降低值和升高值的大小与液面升高或降低有关系,并且随着盾构直径的增大这种压力误差跟着增大;另外,泥水盾构掘进时,由于泥浆的流失、长距离控制、开关阀门的延迟效益或推进速度的变化,进、排泥浆将会失去平衡,气液接触面就会出现上下波动现象。
图2 欧洲泥水平衡模式
间接控制模式是建立在直接控制模式的基础上,通过调节气垫舱压力对掘进时泥水舱内压力的波动进行补偿或缓解,使泥水舱压力更趋于所需的稳定数值(理论设定值)。
这种压力控制是这样实现的:当泥水盾构在一地质掘进时,当前地质压力根据地质情况提前计算出来,确定一个气压值,需要的气压值在压力调节器上进行设置,由气垫舱压力检测气垫仓压力,由压力检测仪把检测结果反馈给压力调节器,压力调节器根据压力检测仪的反馈压力和和设定压力以及基准压力进行运算,输出一个气体压力给进气阀和出气阀,控制进气阀和出气阀的开关,使气垫舱的压力接近设定值,达到平衡掌子面的作用。
3 两种模式的对比
3.1 绘制压力曲线
根据相同压力设定的地质的使用情况,绘制出不同控制方式的压力曲线,见图3。通过图3可看出,直接型的压力波动较大,间接性的控制压力更加平稳,这是因为气垫仓的气囊形成一个缓冲器,在液面波动时缓解和延迟压力的波动,但也存在压力波动。
图3 压力曲线
3.2 欧洲模式存在压力波动的原因分析
欧洲模式泥水盾构设置有气垫舱,开挖面压力控制相对日本模式较高。掌子面的压力平衡靠作用在气垫舱泥水面上的压力和泥浆的液位高度确定。
泥水盾构的工作模式靠泥水在开挖面形成泥膜,靠泥水的压力来平衡水土压力,达到开挖面的压力平衡,由于压力的平衡,减少了开挖面的沉降。实际上液面A的高度是靠进浆泵和排浆泵的流量控制来实现的,所以液面A的液面是在不停的变化。
由于气垫式泥水盾构气垫舱气体的压力是一个设定值,这个设定值在压力调节器上面实现。在地质条件不变的情况下设定值是一个定值。
当液面的高度h变化时,气体的压力是定值,造成作用在底部的压力Z的变化,造成开挖面压力波动,影响到开挖面的稳定,造成一定的地表沉降。
为了解决液面变化引起压力波动,气体压力需要液面高度及时调整。液面的高度检测是通过液位传感器实现的,当液面改变时,液位传感器把液位信息反馈到控制器,由控制器把对应的电信号传送到电、气双控压力变送器,由压力变送器根据对应关系调整气垫舱压力,达到底部压力Z保持基本不变,实现开挖面的稳定。
4 泥水盾构新型的泥浆输送模式
为了提高泥水盾构的使用范围,最有效的办法就是对目前使用的泥水盾构的一些优点进行融合,既能实现目前泥水的优势,又能弥补自身的一些不足。
为了更加能提高压力调节精度,保留气垫舱,使用新的压力控制模式,将有效地提高压力的稳定性。
欧洲模式泥水盾构由于设置有气垫舱,破碎机设置在气垫舱内,因为气垫舱的出现,致使泥水舱和气垫舱底部的空间大、输送距离长等缺陷,造成泥浆流速低,碴土容易沉淀,堵塞底部,严重影响工程进度;另外在砂卵石地层破碎机故障率很高,不得不停机带压关闭泥舱门来维修碎石机。这种情况盾构适合砂层掘进。
为此能加快底部的泥浆流动速度,把气垫舱底部取掉,只保留上半部分,碎石机部分做成一个独立的块,在需要时进行安装,不需要时进行拆除,这样既能实现碎石机的功能,又能缩短碴土底部的距离。有利于提高掘进效率,也能在需要时进行更换。
日本模式的泥水盾构由于没有气垫舱,这样泥浆流量相对较快,为了实现这一功能,增加主机段循环来提高泥水仓泥水流速,提高携碴能力,同时增加底部冲刷功能,把较大粒径的碴土托浮起来,在快速流动泥水作用下,带入泥水管路。
其次增加主机泥水循环管路,这样可以降低进浆管尺寸的大小,在增加主机泥水循环流速的前提下,而不影响进排浆管路的流速。并且泥水管路的直径可以变小,这样就可以降低装机功率和能耗。这种输送模式的泥水盾构泥水输送系统的元件为模块化设计,可以根据不同地质选择安装,特点是适应性强,更换容易,对不可预见的地质有极大的意义,增加了泥水盾构的适应范围。目前局部的改进在现有的泥水盾构里面已经有体现,但整机融合在一起的还没有出现,文章认为这种整体融合的泥水盾构在未来应该是一个发展方向。
5 结语
综上所述,通过以上对泥水盾构的改进,使泥水盾构会有一个更加宽广的使用范围,尽管目前泥水盾构存在着问题,但从自身的特点来看,泥水盾构应该有光明的前景,因为泥水盾构施工环境好,自动化成都较高,控制地表沉降的能力更高,对地质适应性更强。
参考文献
[1]王振飞,张成平,王剑晨.富水砂卵石地层泥水盾构施工地层变形规律[J].铁道工程学报,2013(9):78-83.
[2]杨纪彦.超大直径泥水盾构到达施工技术[J].隧道建设,2009(5):548-551,557.
[3]洪开荣.广深港大断面特长水下盾构隧道的技术难点分析[J].隧道建设,2007(6):1-3,18.
[4]王广余,孙善辉,苏清贵.砂卵石条件下泥水分离技术研究与应用[J].中国工程科学,2010(12):41-45.
[5]刘东.繁华城区富水砂卵石地层大直径泥水盾构隧道施工关键技术[J].隧道建设,2011(1):76-81.
收稿日期:2018-08-23
作者简介:杨爱军(1978-),男,甘肃天水人,中铁工程装备集团隧道设备制造有限公司工程师,研究方向:盾构机的设计。






